Quadrilocale in vendita

Massa, Via Benedetto Croce
€ 360.000
4 locali 4 locali
99 Mq 99 Mq
2 bagni 2 bagni

Quadrilocale in vendita

Massa, Via Benedetto Croce

Descrizione annuncio

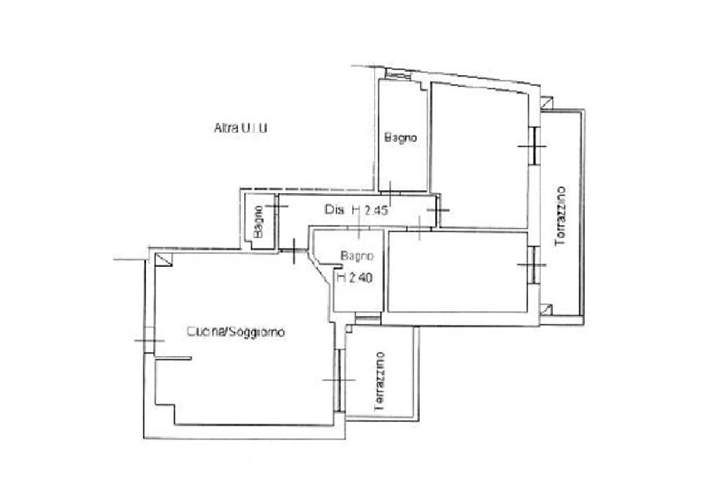
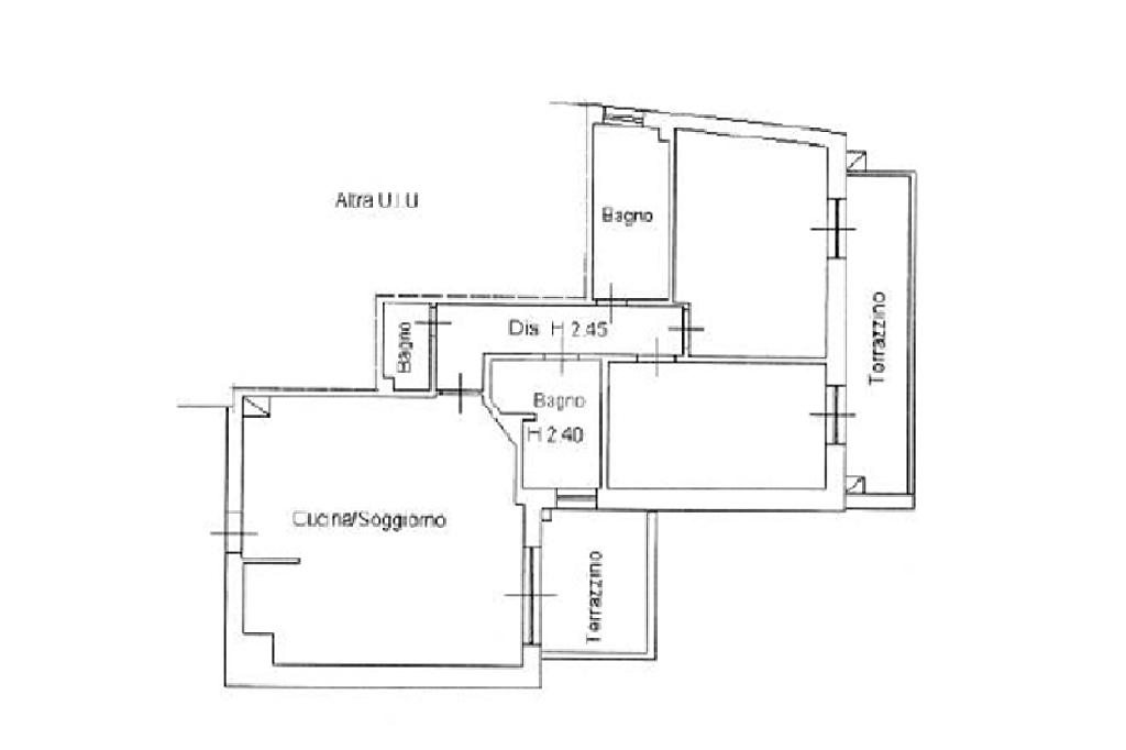
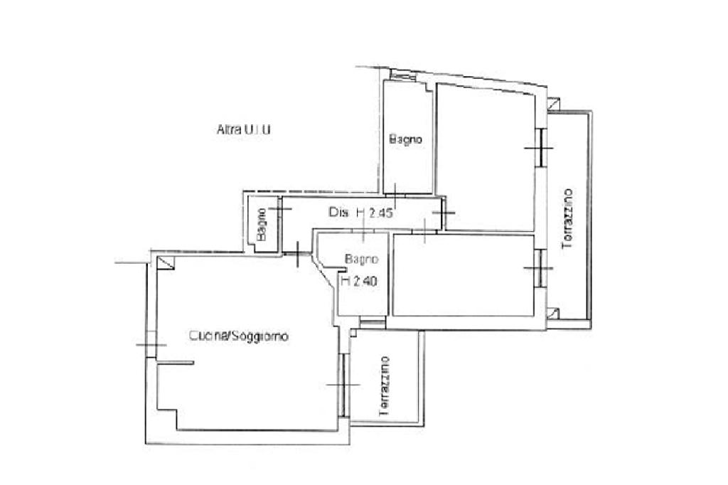
In zona centrale e comoda a tutti i servizi proponiamo in vendita appartamento al primo piano con ascensore.

tramite portone blindato si accede alla zona giorno open space dotata di ampio balcone pranzabile, un corridoio divide la zona notte composta da due camere da letto entrambe con accesso al balcone, nel quale è stato dedicato uno spazio lavanderia ed è dotato di tenda elettrica; troviamo poi due bagni completi dotati di box doccia e un comodo ripostiglio con scarico per la lavatrice.

L'immobile si trova in perfette condizioni, all'interno di un condominio moderno costruito nel 2017, dotato di climatizzazione a pavimento invernale ed estiva e boiler elettrico, il tutto collegato all'impianto fotovoltaico condominiale.

Completa la proprietà una cantina pavimentata e finestrata e un posto auto coperto con colonnina di ricarica elettrica.

Mostra tutto

Nelle vicinanze

Trasporto pubblico Trasporto pubblico
Trasporto pubblico
320 m
Direzione Mare Viale Roma/Via Poggioletto
Direzione Mare Viale Roma/Via Poggioletto
460 m
Massa Centro
Massa Centro
1,1 Km
Ricariche auto elettriche Ricariche auto elettriche
Massa Beccaria | EnelX
450 m
Massa Turati | EnelX
980 m
Massa Mercato | EnelX
1,1 Km
Massa Prado | EnelX
1,2 Km
Emme Rent S.r.l.
1,4 Km
Scuole Scuole
Scuola primaria "Giosuè Carducci" (I.C. "Malaspina")
310 m
Scuola dell'infanzia "Camponelli" (I.C. "Malaspina")
420 m
I.T.I.S A. Meucci
460 m
I. I. S. Eugenio Barsanti
560 m
Liceo Scientifico Enrico Fermi
640 m
Farmacia Farmacia
Farmacia Comunale n.1
470 m
Farmacia Ferrarini
860 m
Farmacia Ramacciotti
980 m
Farmacia Dottor Vinciguerra
1,1 Km
Farmacia Barletta
1,2 Km
Ospedali Ospedali
Obitorio Comunale
1,2 Km
Ospedale del Cuore
2,4 Km
Pronto Soccorso
2,8 Km
Nuovo Ospedale Apuano
2,8 Km
Supermercati Supermercati
Lidl
800 m
Conad
800 m
La Rosa dei Sapori
810 m
Conad City
920 m
Penny
1,2 Km
Negozi Negozi
Panetteria Non solo pane
330 m
Panificio Martinelli
400 m
OVS
670 m
Panificio Caribotti
690 m
Negozi
730 m
Bar Bar
Bar
250 m
Ventidue&Venti
290 m
Bollicine
790 m
Lazzini
860 m
Massa Buffet
1,1 Km
Ristoranti Ristoranti
il Fenicottero pizza&steak
330 m
Circolo La Congiura
360 m
Pizzeria Bar Il Giardino
420 m
Piè de cecchin
560 m
Tuttobene Bar Pizzeria
870 m
Mostra tutto

Caratteristiche

Rif.:
61135749
Piano:
1 di 3 con ascensore (Piano medio)
Posti auto:
1
Balconi:
2
Camere da letto:
2
Arredamento:
Parziale
Mostra tutto
Prezzo Prezzo
€ 360.000
Rata mutuo Rata mutuo
€ 1.697 / mese
Spese annue Spese annue
€ 2.000
Proponi il tuo prezzoProponi il tuo prezzo
Immobile valutato con T·Valuta

Classe Energetica

A2
A2
A2
A2
A2
A2
A2
A2
A2
EP globale non rinnovabile:
46.49 kW h/m² anno
EP globale rinnovabile:
51.92 kW h/m² anno
EP invernale del fabbricato:
EP estiva del fabbricato:
Anno di costruzione:
2017
Riscaldamento:
Centralizzato
Tipo impianto:
A pavimento
Tipo alimentazione:
Pannelli

Ti interessa visionare l'immobile?

Fissa un appuntamento  Fissa un appuntamento

Richiedi informazioni

Clicca su Leggi per aprire l'informativa
* Questi campi sono obbligatori

Calcola il tuo mutuo

Semplice e senza impegno
Anticipo

( % )
Mutuo

( % )

pochi semplici passi

inserisci i tuoi dati
Questionario completato
Grazie per aver richiesto un appuntamento senza impegno con un nostro Consulente del Credito e Assicurativo.

Hai inserito correttamente tutti i dati necessari e a breve riceverai una e-mail con un link da convalidare per inviare i tuoi dati.
Affiliato
Studio Massa Centro Srl
Via Giacomo Puccini, 5 54100 Massa (MS)

Il nostro staff


  • Chiara Brozzi
    Coordinatrice

  • Daniele Toscano
    Responsabile

  • Rebecca Bacchione
    Affiliata
Via Giacomo Puccini, 5 54100 Massa (MS)
Zona: Massa Centro
Mostra su mappa
Orari: Da lunedì a venerdì: mattino 9:00-12:30 pomeriggio 15:00/19:30 Sabato: 9:00-12:30 pomeriggio su appuntamento
Affiliato
Studio Massa Centro Srl
Via Giacomo Puccini, 5 54100 Massa (MS)

2026 Tecnocasa Franchising S.p.A. - P. IVA 08365160152 - Via Monte Bianco 60/A 20089 Rozzano (MI). Ogni agenzia ha un proprio titolare ed è autonoma. Privacy policy | Policy utilizzo | Cookie policy