5 locali in vendita

Massa, Via Marina Vecchia
€ 339.000
5 locali 5 locali
124 Mq 124 Mq
1 bagno 1 bagno

5 locali in vendita

Massa, Via Marina Vecchia

Descrizione annuncio

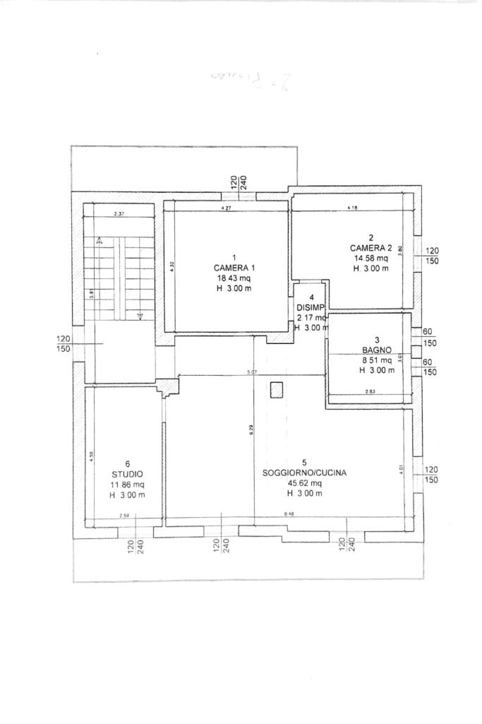
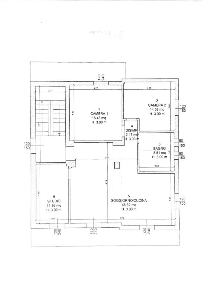
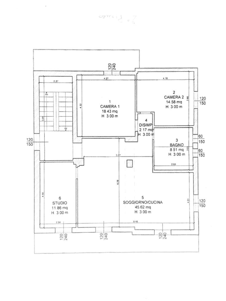
In zona centrale e ben servita proponiamo in vendita appartamento al secondo e ultimo piano di una trifamiliare.

L'ingresso conduce a un ampio soggiorno di 46 m² con cucina a vista, accesso alla balconata e a una prima cameretta attualmente utilizzata come studio. Un disimpegno separa la zona notte, composta da due camere matrimoniali — una delle quali con balcone — e dal bagno finestrato con box doccia. Completano la proprietà una soffitta di circa 50 m², collegabile all’abitazione con possibilità di renderla parte abitabile dell’immobile, e due posti auto di proprietà.

L’immobile si presenta in ottime condizioni ed è stato ristrutturato internamente nel 2012. Esternamente sono in fase di ultimazione i lavori di ristrutturazione del tetto, della facciata e dei balconi. Essendo libero su quattro lati, risulta molto luminoso e gode di una vista panoramica sulla città e sul mare.

Il riscaldamento è centralizzato con caldaia a metano in comune con gli altri due appartamenti; è presente inoltre uno scaldabagno a gas per l’acqua calda. L’appartamento è dotato di impianto di climatizzazione e di allarme. Gli infissi sono in legno con doppi vetri.

La zona è centrale e strategica, a pochi passi dal centro città e a 3km dal mare.

Mostra tutto

Nelle vicinanze

Trasporto pubblico Trasporto pubblico
Trasporto pubblico
90 m
Direzione Mare Viale Roma/Via Carducci
Direzione Mare Viale Roma/Via Carducci
170 m
Massa Centro
Massa Centro
740 m
Ricariche auto elettriche Ricariche auto elettriche
Massa Beccaria | EnelX
760 m
Massa Prado | EnelX
1,2 Km
Massa Mercato | EnelX
1,2 Km
Massa Turati | EnelX
1,3 Km
Emme Rent S.r.l.
1,7 Km
Scuole Scuole
I.T.I.S A. Meucci
130 m
Scuola primaria "Giosuè Carducci" (I.C. "Malaspina")
190 m
I. I. S. Eugenio Barsanti
340 m
Scuola dell'infanzia "Camponelli" (I.C. "Malaspina")
700 m
Scuole
730 m
Farmacia Farmacia
Farmacia Comunale n.1
750 m
Farmacia Barletta
880 m
Farmacia Ramacciotti
1,1 Km
Farmacia Gibellini
1,1 Km
Farmacia Dottor Vinciguerra
1,3 Km
Ospedali Ospedali
Obitorio Comunale
1,2 Km
Ospedale del Cuore
2,1 Km
Pronto Soccorso
2,6 Km
Nuovo Ospedale Apuano
2,6 Km
Supermercati Supermercati
Lidl
420 m
Conad
430 m
La Rosa dei Sapori
570 m
Penny
860 m
Esselunga
960 m
Negozi Negozi
Panificio Martinelli
40 m
Panetteria Non solo pane
220 m
Negozi
390 m
Antica Pasticceria Tonlorenzi
610 m
OVS
870 m
Bar Bar
Ventidue&Venti
300 m
Bar
440 m
Massa Buffet
720 m
Euro Caffetteria
810 m
Associazione murAperte
910 m
Ristoranti Ristoranti
Pizzeria Bar Il Giardino
230 m
Circolo La Congiura
460 m
il Fenicottero pizza&steak
590 m
I 4 Elementi
660 m
Piè de cecchin
910 m
Mostra tutto

Caratteristiche

Rif.:
61159763
Piano:
2 di 2 (ultimo Piano)
Posti auto:
2
Balconi:
2
Camere da letto:
3
Arredamento:
Parziale
Mostra tutto
Prezzo Prezzo
€ 339.000
Rata mutuo Rata mutuo
€ 1.598 / mese
Spese annue Spese annue
€ 0
Proponi il tuo prezzoProponi il tuo prezzo
Immobile valutato con T·Valuta

Classe Energetica

D
D
D
D
D
D
D
D
D
EP invernale del fabbricato:
EP estiva del fabbricato:
Anno di costruzione:
1960
Riscaldamento:
Centralizzato
Tipo impianto:
A radiatori
Tipo alimentazione:
Metano

Ti interessa visionare l'immobile?

Fissa un appuntamento  Fissa un appuntamento

Richiedi informazioni

Clicca su Leggi per aprire l'informativa
* Questi campi sono obbligatori

Calcola il tuo mutuo

Semplice e senza impegno
Anticipo

( % )
Mutuo

( % )

pochi semplici passi

inserisci i tuoi dati
Questionario completato
Grazie per aver richiesto un appuntamento senza impegno con un nostro Consulente del Credito e Assicurativo.

Hai inserito correttamente tutti i dati necessari e a breve riceverai una e-mail con un link da convalidare per inviare i tuoi dati.
Affiliato
Studio Massa Centro Srl
Via Giacomo Puccini, 5 54100 Massa (MS)

Il nostro staff


  • Chiara Brozzi
    Coordinatrice

  • Daniele Toscano
    Responsabile

  • Rebecca Bacchione
    Affiliata
Via Giacomo Puccini, 5 54100 Massa (MS)
Zona: Massa Centro
Mostra su mappa
Orari: Da lunedì a venerdì: mattino 9:00-12:30 pomeriggio 15:00/19:30 Sabato: 9:00-12:30 pomeriggio su appuntamento
Affiliato
Studio Massa Centro Srl
Via Giacomo Puccini, 5 54100 Massa (MS)

2026 Tecnocasa Franchising S.p.A. - P. IVA 08365160152 - Via Monte Bianco 60/A 20089 Rozzano (MI). Ogni agenzia ha un proprio titolare ed è autonoma. Privacy policy | Policy utilizzo | Cookie policy