Casa semindipendente in vendita

Massa, Via dei Saraceni
€ 395.000
5 locali 5 locali
145 Mq 145 Mq
2 bagni 2 bagni

Casa semindipendente in vendita

Massa, Via dei Saraceni

Descrizione annuncio

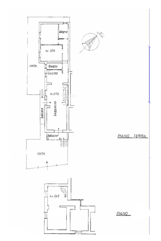
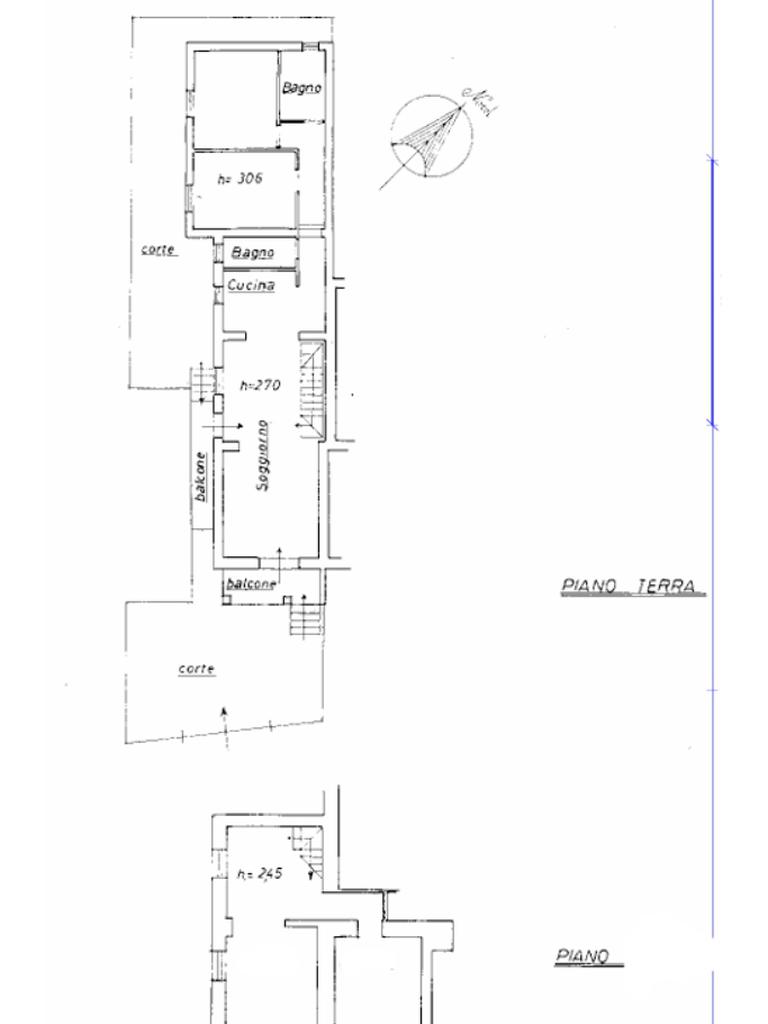
In zona La Zecca proponiamo in vendita appartamento al piano terra di quadrifamiliare.

L'ingresso è indipendente tramite cancello pedonabile e carrabile, dove si accede al posto auto e al giardino che circonda due lati della casa. Un portone blindato da accesso all'abitazione composta da ampio soggiorno con cucina aperta, due camere e due bagni finestrati, tramite scala interna si accede alla taverna dotata camino, forno a legna e terza camera. Completa la porprietà un secondo giardino accessibile dalla zona giorno.

L'immobile si presenta in perfette condizioni, costruito nel 2007, con rifiniture di pregio. Il riscaldamento è autonomo, è presente impianto di climatizzazione e impianto di allarme. Non ci sono spese condominiali. L'esposizione è ottima su tre lati.

La zona è tranquilla e defilata dal traffico ma comoda a tutti i servizi, il centro città dista pochi minuti a piedi.

Mostra tutto

Nelle vicinanze

Trasporto pubblico Trasporto pubblico
Trasporto pubblico
450 m
Direzione Mare Viale Roma/Via Tacca
Direzione Mare Viale Roma/Via Tacca
450 m
Massa Centro
Massa Centro
1,3 Km
Ricariche auto elettriche Ricariche auto elettriche
Massa Beccaria | EnelX
200 m
Massa Turati | EnelX
680 m
Massa Mercato | EnelX
830 m
Massa Prado | EnelX
1,0 Km
Massa Giampaoli | EnelX
1,2 Km
Scuole Scuole
Scuola dell'infanzia "Camponelli" (I.C. "Malaspina")
210 m
Liceo Scientifico Enrico Fermi
350 m
Scuola primaria "Dante Alighieri" e Scuola dell'infanzia "La Salle" (I.C. "Malaspina")
450 m
Scuola primaria "Giosuè Carducci" (I.C. "Malaspina")
530 m
Liceo Classico Pellegrino Rossi
690 m
Farmacia Farmacia
Farmacia Comunale n.1
230 m
Farmacia Ferrarini
590 m
Farmacia Dottor Vinciguerra
790 m
Farmacia Ramacciotti
810 m
Farmacia Menichetti
980 m
Ospedali Ospedali
Obitorio Comunale
1,2 Km
Ospedale del Cuore
2,4 Km
Supermercati Supermercati
Conad City
690 m
Lidl
870 m
La Rosa dei Sapori
900 m
Conad
930 m
Supermercati
1,1 Km
Negozi Negozi
Panificio Caribotti
430 m
OVS
450 m
Panetteria Non solo pane
530 m
Aigle Noir
550 m
AK-47
560 m
Bar Bar
Bar
310 m
Ventidue&Venti
460 m
Bollicine
560 m
Lazzini
610 m
Hermes Bar
940 m
Ristoranti Ristoranti
Circolo La Congiura
390 m
il Fenicottero pizza&steak
570 m
Pizzeria Bar Il Giardino
600 m
Piè de cecchin
640 m
Ristorante Sushi Ten 2
720 m
Mostra tutto

Caratteristiche

Rif.:
61161019
Piano:
Terra con giardino di 2
Totale piani:
2
Posti auto:
2
Balconi:
1
Camere da letto:
3
Mostra tutto
Prezzo Prezzo
€ 395.000
Rata mutuo Rata mutuo
€ 1.862 / mese
Spese annue Spese annue
€ 0
Proponi il tuo prezzoProponi il tuo prezzo
Immobile valutato con T·Valuta

Classe Energetica

C
C
C
C
C
C
C
C
C
EP invernale del fabbricato:
EP estiva del fabbricato:
Anno di costruzione:
2007
Riscaldamento:
Autonomo
Tipo impianto:
A radiatori
Tipo alimentazione:
Metano

Ti interessa visionare l'immobile?

Fissa un appuntamento  Fissa un appuntamento

Richiedi informazioni

Clicca su Leggi per aprire l'informativa
* Questi campi sono obbligatori

Calcola il tuo mutuo

Semplice e senza impegno
Anticipo

( % )
Mutuo

( % )

pochi semplici passi

inserisci i tuoi dati
Questionario completato
Grazie per aver richiesto un appuntamento senza impegno con un nostro Consulente del Credito e Assicurativo.

Hai inserito correttamente tutti i dati necessari e a breve riceverai una e-mail con un link da convalidare per inviare i tuoi dati.
Affiliato
Studio Massa Centro Srl
Via Giacomo Puccini, 5 54100 Massa (MS)

Il nostro staff


  • Chiara Brozzi
    Coordinatrice

  • Daniele Toscano
    Responsabile

  • Rebecca Bacchione
    Affiliata
Via Giacomo Puccini, 5 54100 Massa (MS)
Zona: Massa Centro
Mostra su mappa
Orari: Da lunedì a venerdì: mattino 9:00-12:30 pomeriggio 15:00/19:30 Sabato: 9:00-12:30 pomeriggio su appuntamento
Affiliato
Studio Massa Centro Srl
Via Giacomo Puccini, 5 54100 Massa (MS)

2026 Tecnocasa Franchising S.p.A. - P. IVA 08365160152 - Via Monte Bianco 60/A 20089 Rozzano (MI). Ogni agenzia ha un proprio titolare ed è autonoma. Privacy policy | Policy utilizzo | Cookie policy