Complesso in vendita

Massarosa, Appartamenti uso ufficio Quiesa, Massarosa
€ 115.000
3 locali 3 locali
86 Mq 86 Mq
3 bagni 3 bagni

Complesso in vendita

Massarosa, Appartamenti uso ufficio Quiesa, Massarosa

Descrizione annuncio

Proponiamo in vendita separata 3 appartamenti uso ufficio completamente ristrutturati a Quiesa, Massarosa.

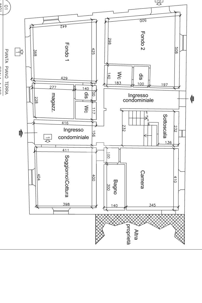
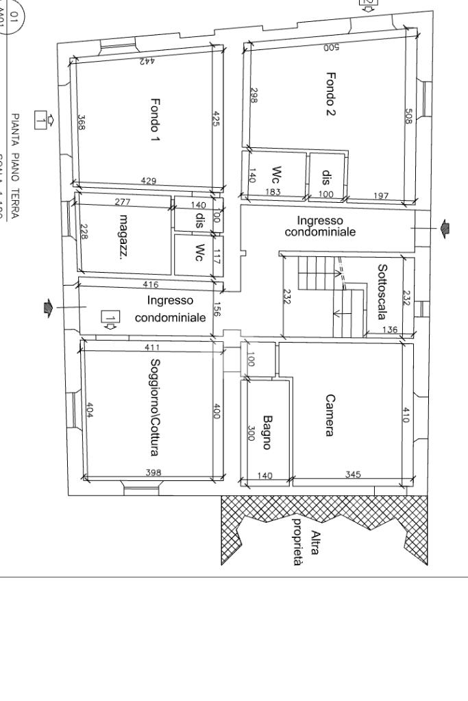
Al piano terra troviamo il primo di 47 metriquadrati circa, taglio interessante e molto comodo, doppio accesso con annessi posti auto condominiali assegnati . PREZZO 90.000 Euro.

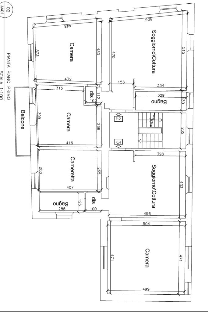
Al primo piano troviamo il secondo , il più grande , tocca i 78 metriquadrati , taglio più ampio e buona esposizione . PREZZO 120.000 Euro.

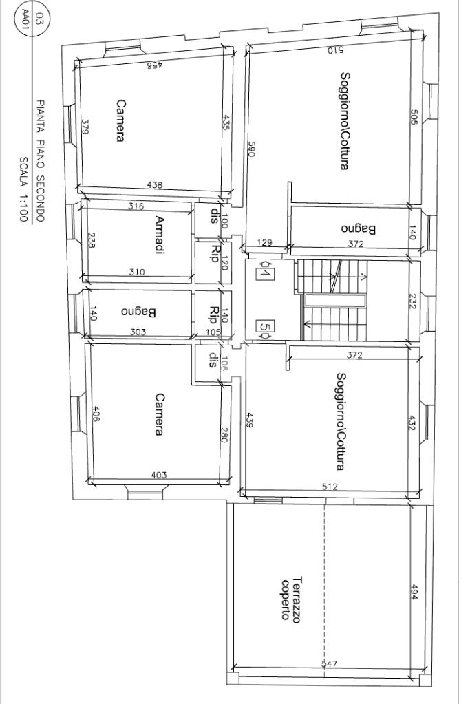
Al secondo ed ultimo piano troviamo l'ultimo di 56 metriquadrati ma con un grande terrazzo di circa 30 metriquadrati che rende la soluzione molto luminosa e contraddistinta dagli altri due. PREZZO 115.000 Euro.

Porte d'ingresso e infissi tutti in doppio vetro nuovi.

Possibilità di posto auto esclusivo per tutte le soluzioni.

---CARATTERISTICHE , METRI DELL'ANNUNCIO FANNO RIFERIMENTO ALL'APPARTAMENTO USO UFFICIO DELL'ULTIMO PIANO---

Palazzina in ordine. Ideali come investimento , non perdere l'occasione di acquistare un appartamento uso ufficio già pronto solo da arredare nel cuore di Quiesa, Massarosa.

Mostra tutto

Nelle vicinanze

Trasporto pubblico Trasporto pubblico
Massarosa Bozzano
Massarosa Bozzano
1,4 Km
Trasporto pubblico
1,4 Km
Scuole Scuole
Scuole
240 m
Scuola Elementare S. Giovanni Bosco
240 m
Scuola pubblica elementare
1,3 Km
istituto comprensivo Massarosa primo
2,3 Km
scuola elementare Alessandro Manzoni
2,4 Km
Farmacia Farmacia
Farmacia Frati
740 m
farmacia Fontana
2,5 Km
Ospedali Ospedali
Misericordia
2,2 Km
Supermercati Supermercati
Penny
1,3 Km
Negozi Negozi
Laura la Sposa Chic, abiti da sposa e cerimonia
930 m
La Bottega del Pane
1,0 Km
Alimenatri Frutta e Verdura
1,2 Km
Intimo Cristina
2,3 Km
Show Room Grazia
2,4 Km
Bar Bar
Bar Tabacchi Macellarino
630 m
Snack Bar la Penichella
1,2 Km
Bar Tabacchi Spuntini
1,4 Km
Bar
2,0 Km
Bar Misericordia
2,2 Km
Ristoranti Ristoranti
Donatella da Graziano
40 m
I fatti in casa & cotti al forno
40 m
Adriana
1,0 Km
Il Cantuccio
1,3 Km
Prato Verde
1,4 Km
Mostra tutto

Caratteristiche

Rif.:
61140853
Piano:
2 di 2 (Piano alto)
Posti auto:
3
Balconi:
1
Condizionamento:
Autonomo
Ascensore:
No
Mostra tutto
Prezzo Prezzo
€ 115.000
Rata mutuo Rata mutuo
€ 542 / mese
Spese annue Spese annue
€ 0
Proponi il tuo prezzoProponi il tuo prezzo

Altre caratteristiche

Descrizione dei locali
Bagno Con Finestra

Classe Energetica

A1
A1
A1
A1
A1
A1
A1
A1
A1
Riscaldamento:
Autonomo
Tipo impianto:
A radiatori
Tipo alimentazione:
Altro

Ti interessa visionare l'immobile?

Fissa un appuntamento  Fissa un appuntamento

Richiedi informazioni

Clicca su Leggi per aprire l'informativa
* Questi campi sono obbligatori

Calcola il tuo mutuo

Semplice e senza impegno
Anticipo

( % )
Mutuo

( % )

pochi semplici passi

inserisci i tuoi dati
Questionario completato
Grazie per aver richiesto un appuntamento senza impegno con un nostro Consulente del Credito e Assicurativo.

Hai inserito correttamente tutti i dati necessari e a breve riceverai una e-mail con un link da convalidare per inviare i tuoi dati.
Affiliato
Studio Massa Centro Srl
Via Giacomo Puccini, 5 54100 Massa (MS)

Il nostro staff


  • Chiara Brozzi
    Coordinatrice

  • Daniele Toscano
    Responsabile

  • Rebecca Bacchione
    Affiliata
Via Giacomo Puccini, 5 54100 Massa (MS)
Zona: Massa Centro
Mostra su mappa
Orari: Da lunedì a venerdì: mattino 9:00-12:30 pomeriggio 15:00/19:30 Sabato: 9:00-12:30 pomeriggio su appuntamento
Affiliato
Studio Massa Centro Srl
Via Giacomo Puccini, 5 54100 Massa (MS)

2025 Tecnocasa Franchising S.p.A. - P. IVA 08365160152 - Via Monte Bianco 60/A 20089 Rozzano (MI). Ogni agenzia ha un proprio titolare ed è autonoma. Privacy policy | Policy utilizzo | Cookie policy